1182 Broward Drive NE, Marietta
GA 30066 (MLS #7698678)
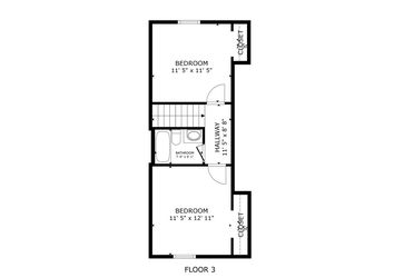
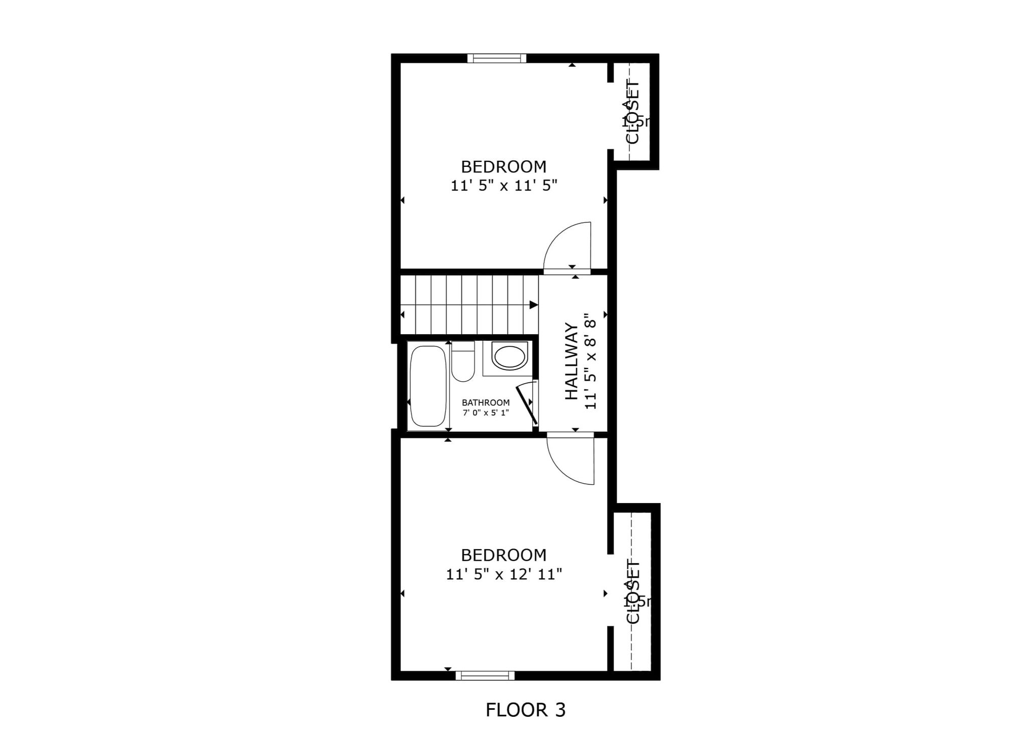
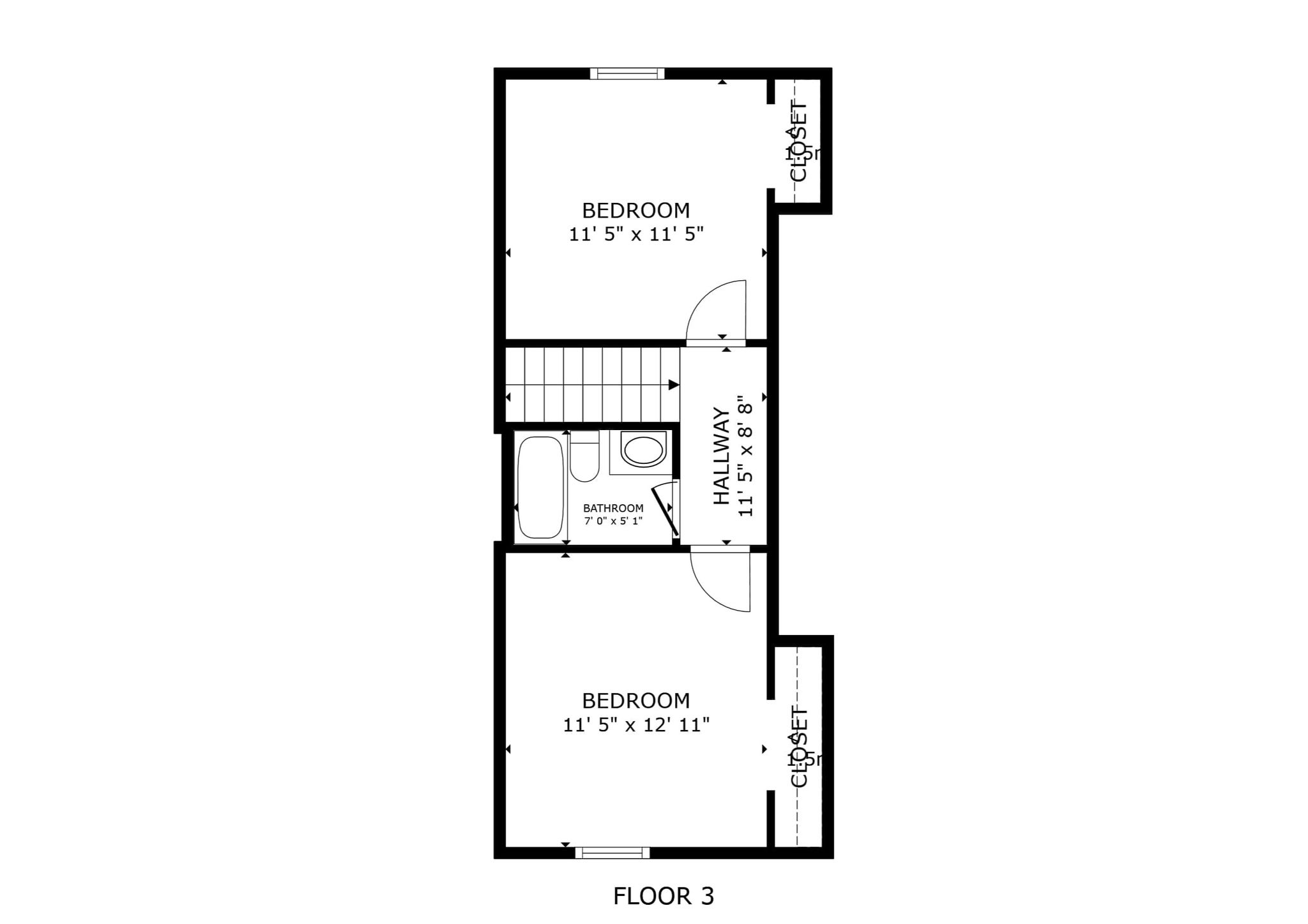
Welcome to this charming 4 bed / 3 bath East Cobb home tucked away in a quiet neighborhood. Step inside to an inviting living room with a gas log fireplace that flows into a kitchen equipped with stainless steel appliances, white cabinetry, and a laundry closet with washer and gas dryer. A main-level bedroom and full bath offer an easy option for family and guests. Upstairs, two spacious bedrooms share a hall bath with a new toilet. The finished lower level offers updated flooring and versatile space that is ideal for an in-law suite with its own living room, kitchenette, and bedroom with a walk-in closet and updated full bathroom. Enjoy relaxed outdoor living on the screened-in porch overlooking a partially fenced backyard. Beyond the fenced area, you’ll find a cozy fire pit space along with a storage shed for tools or lawn equipment. Upgrades include updated windows and a four-year-old roof. With shopping, dining, and schools close by, this home offers an ideal blend of convenience and everyday comfort.
Browse More Properties
Confirm your time
Fill in your details and we will contact you to confirm a time.
Contact Form
Welcome to our open house!
We encourage you to take a few seconds to fill out your information so we can send you exclusive updates for this listing!






































