2440 Sandy Plains Road Building #7, Marietta
GA 30066 (MLS #7713344)
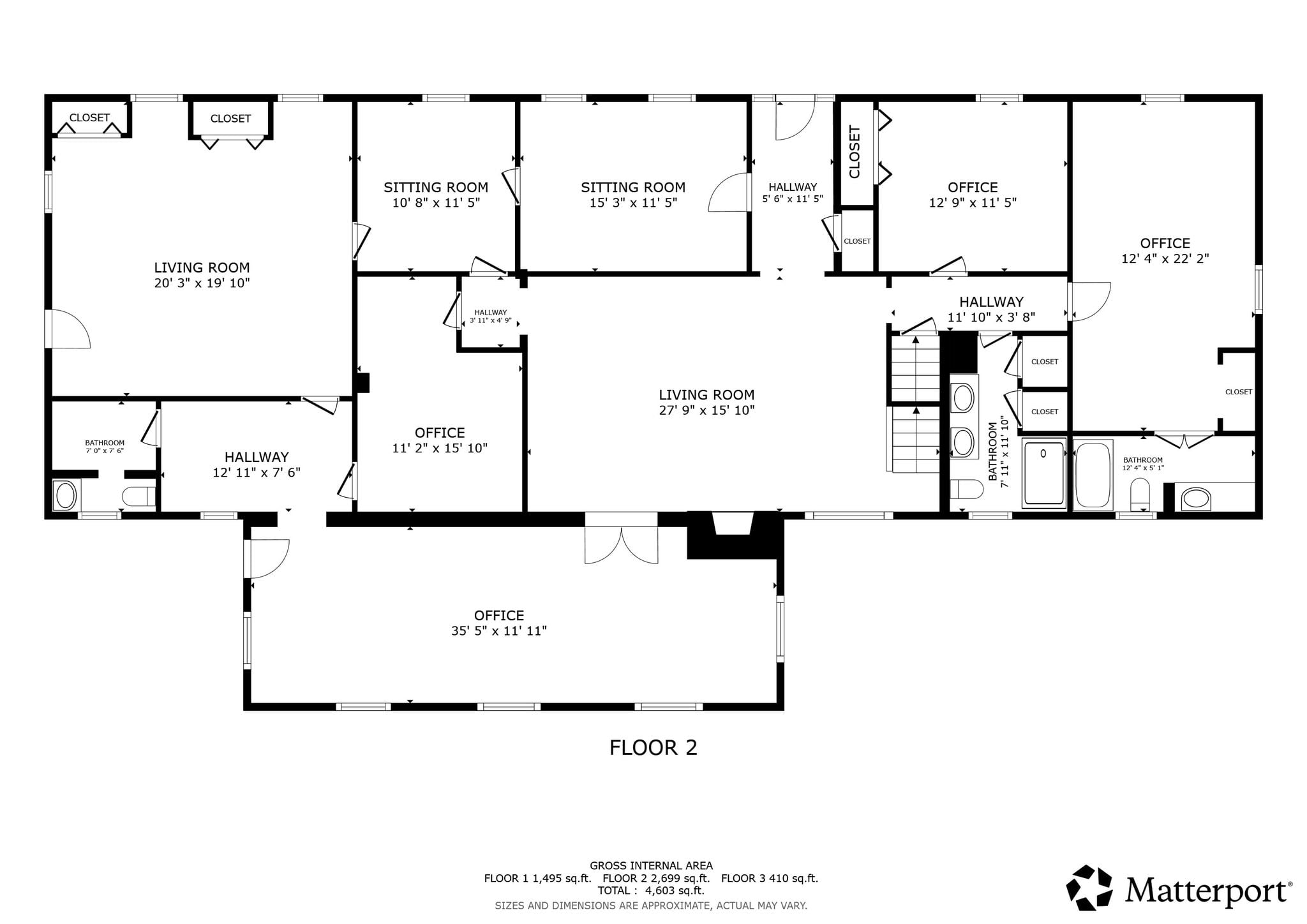
Professional space meets prime location in this impressive three-level office building in the sought-after Sandy Plains Executive Center. Offering over 4,600 square feet, this four-side brick property provides a versatile layout ideal for a variety of business needs. The main level features four private offices, four conference areas that can easily be converted into additional offices, and a stunning two-story conference room with a fireplace at the center of the space. This level also includes two full bathrooms and one half bathroom for added convenience. Upstairs, you will find two additional private offices and another full bathroom, providing excellent separation for executive or administrative use. The finished basement expands the functionality with a private office, two spacious flex rooms perfect for conference or training areas, an additional fireplace, and a half bathroom. An attached one-car garage and covered front porch add both practicality and curb appeal. Ideally situated just off high-traffic Sandy Plains Road, this property offers outstanding visibility and accessibility, surrounded by numerous businesses, shopping, and dining options—making it an exceptional opportunity for your business or investment portfolio. Owner pays all utilities except water, sewer, and trash, which are included in the quarterly association dues of $935.21. The sale includes the land and building only; equipment and business inventory are negotiable, and current tenant occupancy is negotiable as well.
Browse More Properties
Confirm your time
Fill in your details and we will contact you to confirm a time.
Contact Form
Welcome to our open house!
We encourage you to take a few seconds to fill out your information so we can send you exclusive updates for this listing!























































